コープ野村祐天寺
公園前の育てる住宅
暮らしは十人十色で、日々変化するもの。
家を買ってからも、住んでからも暮らしに合わせてぴったりの家をつくりたい。
その思いで、住んでからも育てやすい住宅を企画しました。
今回の住まいは、公園前のため、心地よい緑に囲まれた開放的な空間。
そのポテンシャルを感じながら、「素地の空間」にリノベーションし、あとで空間をカスタマイズしやすいように下地補強、コンセントの位置など工夫を行っています。
本物件では完成度90%のリノベーションマンション「未完成住宅」をプロデュースする9(ナイン)株式会社と協業。
両社が考える「未完成住宅」の在り方を新たに提案しています。
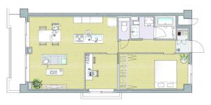
( 間取り )
| 専有面積 | 66.36㎡ |
|---|---|
| 間取り | 1LDK |
( 写真 )
写真をクリックすると詳細の説明文がご覧いただけます。
( ポイント )
公園前の育てる住宅
暮らしは十人十色で、日々変化するもの。
家を買ってからも、住んでからも暮らしに合わせてぴったりの家をつくりたい。
その思いで、住んでからも育てやすい住宅を企画しました。
今回の住まいは、公園前のため、心地よい緑に囲まれた開放的な空間。
そのポテンシャルを感じながら、「素地の空間」にリノベーションし、あとで空間をカスタマイズしやすいように下地補強、コンセントの位置など工夫を行っています。
本物件では完成度90%のリノベーションマンション「未完成住宅」をプロデュースする9(ナイン)株式会社と協業。
両社が考える「未完成住宅」の在り方を新たに提案しています。
公園前の住まい


祐天寺からは商店街を抜けて閑静な住宅街を歩くアプローチ。また、中目黒駅までも生活圏で、道中ブルーボトルコーヒーなどの個性的な店舗が建ち並びます。コープ野村祐天寺の南側道路向いは「中町せせらぎ緑地公園」のため、住戸からは遮る建物もなく、開放的な眺望になります。
レトロでシンプルなマンション


昭和55年築 総戸数8戸 野村不動産旧分譲のマンション。修繕履歴としては定期的に行い、屋上防水工事:平成30年、鉄骨階段塗装工事:平成28年、雑排水管更新工事:平成25年実施。レトロでシンプルな外観。用途地域が第一種低層住居専用地域のため、低層の3階建てで、エレベーターはありませんが、上まで登ると空が広く気持ちの良い景色が望めます。
風と光が抜ける3方角住戸


南・東・北の3方角住戸。どの窓からも光と風が入ってきます。基本的には、扉は、できるところは引戸にして、使わないときは引戸を開けて、家中に風がいきわたるように設計しました。
生活とともに育てられる空間

其々の人の暮らしに合わせやすいような「素地の空間」にリノベーションしました。つくって完成ではなく、暮らしの変化に合わせて空間をカスタマイズしながら住む。そんな自分らしい暮らしを実現する仕組みを考えました。
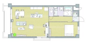
生活の変化に合わせられる可変性のあるプラン




専有面積:66.36㎡。基本プランは、約22.5帖広々としたLDKと約9.0帖の大きな居室。そこから、次の住まい手や暮らしの変化に合わせて色々なプランに変えられるよう、下地補強やコンセント、スイッチ、エアコン位置などの工夫をしております。
LDKの住まい方について考えてみる




4つのパターンをCGで作成しています。
・約22.5帖のLDKに南側に1室設けるパターン
・ワークスペースを北側に設けるパターン
・約22.5帖のLDKをそのままにデスクカウンターを造作するパターン
・南側に2つの居室を設けるパターン
カスタマイズするイメージの参考にご覧ください。
手を入れやすい素材を選ぶ


永く住まうためには、素材選びが大切。
オークの複合フローリング(無垢材2㎜)は、無塗装のため、住まい手が決まってからお好みのオイル塗装を選んでもらいます。また、お好みによってはLDの扉やクロスを塗装することもできます。(別途、追加費用が必要になります。)
「未完成住宅」の9株式会社との協業プロジェクト

9株式会社はこれまで完成度90%のリノベーションマンション「未完成住宅」をプロデュースしてきた設計事務所。壁・床・家具を自分好みに選ぶことができ、自分らしく長く愛される住宅の在り方を提案してきました。
今回は両社がアイデアを持ち寄ることで暮らし・生活に寄り添った新たな「未完成住宅」を作り上げています。
( 物件概要 )
リノベーション内容
【リノベーション内容】
●間取り変更(2LDK→1LDK)
●オープンキッチンに変更
●将来間仕切り追加対応可能な下地補強
●玄関床(新規左官仕上げ)
●シューズインクローゼット新設
●玄関人感センサー付照明新設
●TVモニタ付インターホン新設
●システムキッチン交換(IHクッキングヒーター、浄水器付シャワー水栓、食器洗浄機)
●ダクトレス循環式レンジフード新設
●洗面台交換(3面鏡)
●洗濯パン・水栓交換
●収納棚新設
●ユニットバス交換(1116→1416サイズ)
●浴室暖房換気乾燥機新設
●給湯器新設(追炊機能有)
●洗浄機能付トイレ交換
●トイレ収納交換(吊戸)
●その他(ライニングカウンター新設)
●配管交換(給湯管・追炊き管)
●フローリング張替(LD・K・廊下・洋室)
●水まわり床張替(フロアタイル)
●クロス張替(全室)
●建具交換(全て)
●収納扉交換(全て)
●コンセント・スイッチ交換(全て)
●サッシ・網戸調整
●網戸(網のみ張替)
●高効率給湯器(全部)
●照明用配線ダクト新設
●R1検査実施