+「マルニ木工」 プロジェクト 繋いでいく、美の思想。

  • Partner
    マルニ木工
  • Information
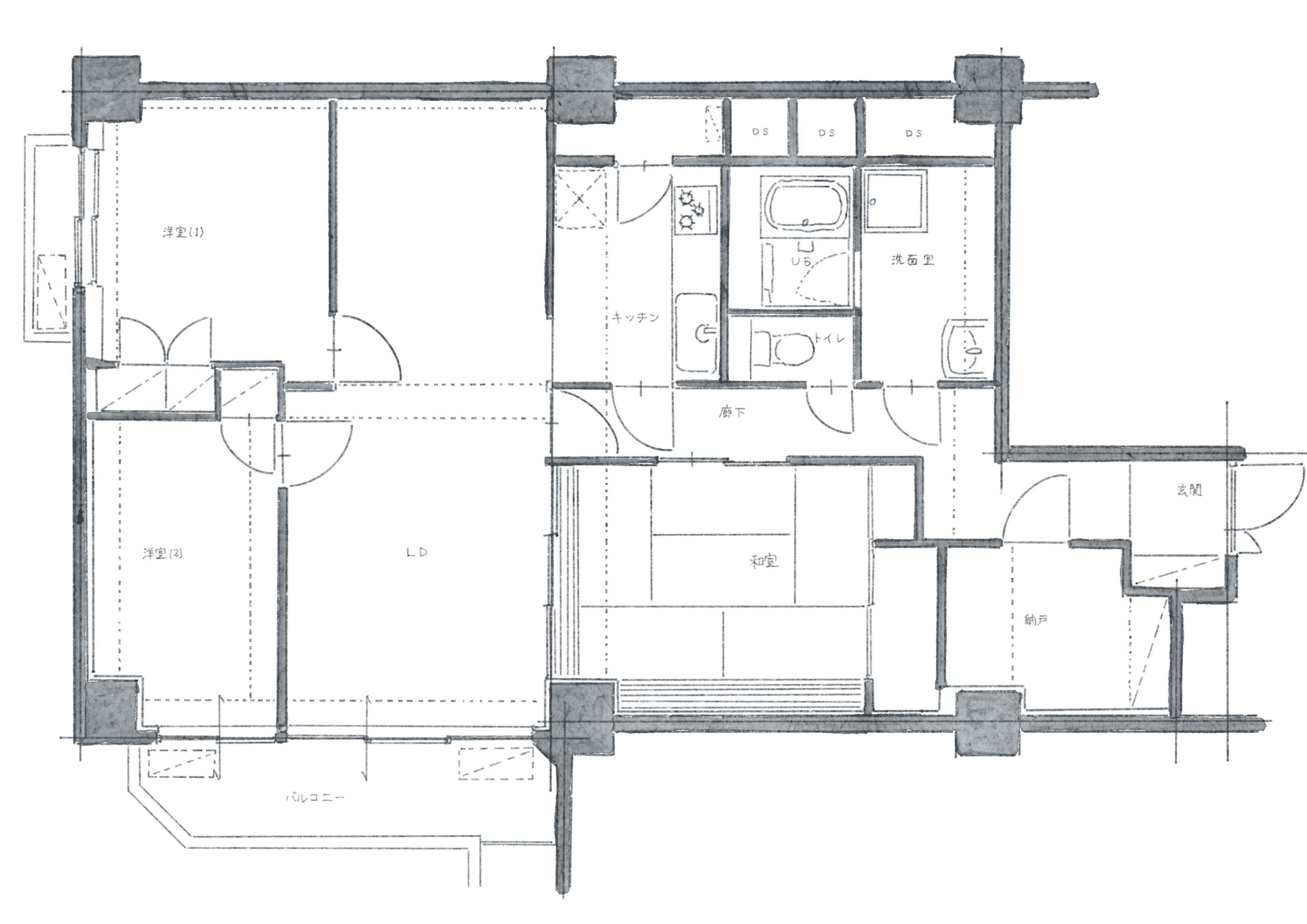
    東京都渋谷区代々木|98.13㎡|2LDK+WIC/南向き

作り手の思想や美意識に共感し、
時とともに空間を育てていく。

1960〜70年代、東京の急速な発展の中で、多くの良質なマンションが生まれました。その時代に建築された代々木の杜ハイツには、“理想の都心居住”を想い描いた当時の建築家や開発者たちの美意識や思想が息づいています。私達は、その思想に向き合い、現代の暮らしへと丁寧にチューニングすることを試みました。マルニ木工の〈Traditional Project〉の理念と技術を重ね、家具と建築、過去と未来をつなぐ空間を再構築します。

(パートナー)

PARTNER

+Context

  • 協業パートナー

    株式会社マルニ木工

    マルニ木工は、1928年に広島で創業した家具メーカーです。創業以来「工芸の工業化」をモットーに、職人の手作業と緻密な機械加工を融合させ、工芸的な美しさを備えた高品質な家具を適正な価格で届けています。そこには、創業当時から変わらない「工芸が息づくモノづくり」があります。100年後も定番であり続けることを目指し、世界的なデザイナーと協業したMARUNI COLLECTIONと、伝統的な彫刻をいまに再解釈するTradition Projectを通じて、長年の熟練と豊かな感性が生み出す、人の「手」を感じられる家具をつくり続けています。それらは、どのような時代にあっても、何気ない日常に温もりと真の豊かさをもたらしてくれます。

プロジェクトパートナー

  • 設計者

    knof

    knof(ノフ)は、菊嶋かおり と 永澤一輝 が主宰する建築設計事務所です。東京 清澄白河/門前仲町を拠点に、国内外問わず活動しています。枠に捉われず多角的にコラボレーションしながら、ものづくりを楽しむことを心がけています。対話を通して、あたらしい物の見方・居心地の良さを一緒に発見していけたら幸せです。

(ストーリー)

STORY

繋いでいく、美の思想。

緑と歴史が息づく、代々木の邸宅

渋谷区代々木五丁目。
足もとには代々木八幡の森、そして代々木公園、明治神宮と、都心では手に入れがたい緑の環境が息づく場所です。

代々木公園には、かつて米軍の街「ワシントンハイツ」がありました。
戦後の東京において、ここは異国の文化が漂う特別なエリアであり、
その後、1964年の東京オリンピックでは選手村として世界の注目を集めました。
やがて跡地は「代々木公園」として整備され、今では都心の貴重な緑として多くの人々に親しまれています。
この土地には、都市にありながらも、自然と時代の流れを感じられる、穏やかな空気が満ちています。

「代々木の杜ハイツ」が誕生したのは1973年。
総戸数125戸というスケールに加え、24時間有人管理体制を備え、
敷地内には四季の移ろいを映す日本庭園も設けられました。
東京が国際都市として成熟しはじめた時代に生まれたこの建築は、
新しい都心居住のかたちを提案した存在でもあります。

都市の中で自然を感じ、人間らしく、心豊かに暮らすという思想が、この建物には脈々と受け継がれています。

代々木の杜ハイツへとつながる、前章の物語

「代々木の杜ハイツ」でのプロジェクトを構想する以前、
私たちはマルニ木工、そして設計者であるknofとともに、2024年に「東急ドエルプレステージ代々木公園」でリノベーションプロジェクトを手がけました。
マルニ木工の、木という素材と真摯に向き合う姿勢、そして「ものづくり」を支える哲学に深い感銘を受けながら、その姿勢から学びながら、空間を完成させていきました。

同年10月、マルニ木工が「Tradition Project」を発表。
1966年、カービングマシンを導入し家具彫刻を始めて以降、
フランスやイギリスの伝統様式を取り入れた「エジンバラ」「ベルサイユ」「地中海」などのシリーズを展開してきたマルニ木工。
その長い歴史を踏まえ、祖業であるクラシック家具を現代の視点で再構築しようというのが「Tradition Project」の目的でした。

木と手仕事。その本質をマルニ木工に学ぶ。

「工芸の工業化」「座る人も美しく見える家具づくり」、創業当時からこの思想を貫くマルニ木工。
祖業であるクラシック家具の製造を通し、木の特性を最大限に生かすため、
曲木、彫刻、突板といった技術を研ぎ澄ましながら、
企画・製造・修理までを一貫して行う体制を築いてきました。
その蓄積が、深澤直人デザインの「HIROSHIMA」など、数々の名作家具を支えています。

「Tradition Project」は、マルニ木工の技術と思想の原点であるクラシック家具を次の時代へ引き継ぐための取り組み。
過去に培われた価値を、いまの感覚で再解釈し、“伝統を生かす革新”を試みるものです。

この取り組みに共感し、私たちは「代々木の杜ハイツ」でのプロジェクトにおいても、
協業パートナーとしてマルニ木工、設計としてknofを引き続き迎えました。
さらに「Tradition Project」のディレクターを務められた相馬英俊さんをプロデューサーに迎え、プロジェクトを進めることになりました。

「繋ぎ手」として、時代性と今、家具と建築、住み手と住居を繋ぐ。

「Tradition Project」ディレクターである相馬さんから提案いただいた今回のプロジェクトのテーマ。
それは、「繋ぎ手」という役割を担うことでした。

マルニ木工の「Tradition Project」がそうであるように、長い時間の中で培われてきた職人の技術、誤魔化しのないものづくりの姿勢や想いを未来へ繋ぐこと。
そのために、この街、この建物、この部屋が持つ魅力、そして当時の作り手の想いや美意識に向き合い、そこに宿る本来の力に光を当て、引き上げ、伝えていくこと。

作り手の想いに共感する使い手が、その思想とともに愛着を持って暮らし、生きていく。
そんな循環を目指すプロジェクトが、ここに完成しました。

住まいの背景を紡ぐ【紡景】|マルニ木工 / 相馬英俊

"紡景(ぼうけい)"とは、建物に宿した技術や思想。その静かな景色をすくい取りながら、新しい暮らしへそっと紡いでいくこと。今回のプロジェクトでは、ディレクションを務めた相馬英俊さんに、マルニ木工の祖業であるクラシック家具を現代に再構築した「Tradition Project」を手がけた背景や、暮らしの道具へのこだわり、愛着についてお話を伺いました。住まいの随所に息づく、その思想や眼差しにもぜひご注目ください。

(デザイン)

DESIGN

コンセプト

繋ぎ手の杜

マルニ木工とのリノベーションプロジェクト第二弾となる「代々木の杜ハイツ」。
第一弾「東急ドエルプレステージ代々木公園」で掲げた“多様な時間軸を尊重する”という思想を受け継ぎながら、
今回の「このチーム」「この場所」「この建物」だからこそ実現できる価値を探求しました。
本プロジェクトでは、「Tradition Project」を参照しつつ、代々木の杜ハイツをはじめとする、1960〜70年代に建てられた“古き良きマンション”に焦点を当てています。
そして、相馬英俊さんが提案した「繋ぎ手」というキーワードをもとに、建築コンセプトを「繋ぎ手の杜」と定めました。

アプローチ

  • 想いを繋ぐ

    本プロジェクトの中心にあるのは、 “想いの継承”です。このチームのこだわりや思想、 そして新たにここに暮らす人々の愛着が重なり合うことで、かつてこのマンションを築いた人々の想いや技術が次世代へと繋がっていきます。その積み重ねが、 建物単体の価値を超え、マンション全体、そして地域の魅力を引き上げていく。同時に、私たちが手を入れることは、周囲の環境、さらには日本や世界の“杜 (もり) ” を次代へと繋いで いく行為でもあります。ハコとヒト、つくり手と住まい手、過去と未来、 杜と建築、 地域と世界。それぞれの間に“良い繋ぎ手” が生まれていく、そんなプロジェクトを目指しています。

  • 杜を繋ぐ

    敷地の近くには、 代々木八幡宮の鎮守の杜が広がり、このマンションの敷地にも、その流れを意識したよ うな豊かな緑が育まれています。配置図を読み解くと、 当時の設計者が樹木と建物の配置を通して“各住戸にどのように光と風の抜けをつ くろうとしたか”が伝わってきます。その思想を受け継ぎ、 さらに深化させることが、 私たちの使命です。この一連のプロジェクトは、 「杜を繋ぐ」 営みそのもの。

  • 時代を繋ぐ

    ヴィンテージマンションの“良さ”とは、その時代の人々が未来に夢を描き、 それを実現しようとしたエネ ルギーにあります。そこには、現代では忘れられつつある理想や熱量が息づいています。私たちは、その価値を再発見し、磨き上げ、 「代々木の杜ハイツ」 を真のヴィンテージマンションへと育 てていきたいと考えています。同時に、現代の視点で再構築し、 今の暮らしにふさわしい快適さと美意識へとチューニングしていく。過去と未来を繋ぐ“繋ぎ手”として、新たな価値を創造するリノベーションを目指します。

プラン

After

ディテール

  • マンションの外壁のタイルを内部まで引き込む

    外壁に隣り合う内装の壁を、 外壁と近しいタイルで貼り込み、 外部を引き込む仕掛けとしています。 この時代らしい、力も形も魅力的なタイルです。

  • ガラスブロックの壁

    熱量の⾼い時代感を担保するのは、弧を描くダイナミックなガラスブロックの壁。もともとあったガラスブロックを引き継ぎ、アップグレードします。⻄側開⼝部の明るさをキッチンまで届ける役割もあります。

  • 縁側の中間領域としての小上がり

    外壁と近しいタイル側の和室を小上がりとすることで、縁側のような中間領域を設け、内と外をゆるやかに行き来するような空間体験を生み出しました。

  • 家具のモール材を建築部材としても活⽤

    Tradition Projectのテーブルのモール材を、建築部材としても活⽤。ダイニングテーブルとキッチンカウンター、折り上げ天井/縁側の縁/⽞関框をマルニ⽊⼯さんに作ってもらいました。家具と建築を同等に扱いシームレスな空間を実現しています。

  • 椅⼦張り⽤ファブリックを建具に張り込む

    「Tradition Project」のアイコンともなっている英国のリバティ社のファブリックを、リビングの建具に張り込みます。東洋の植物にインスピレーションを受けたデザインであるファブリックを空間に取り入れることで、東洋と西洋の文化の交わりを想起させます。

  • マルニ木工の家具製作時に出る木粉を練り込んだ左官

    マルニ⽊⼯の得意とする3D切削。選りすぐられた⽊材を削ったときに出る⽊粉を、スサの代わりに混ぜ込んだ「⽊粉左官」を開発。この試みは、単にサステナブルな素材再利用ではなく、 “木が建築の中で新たな命を得る”という思想の具現化でもあります。⼟と⽊が融和したやわらかい表情になりました。

物件概要

  • 所在地
    東京都渋谷区代々木
  • 専有面積
    98.13㎡
  • 間取り/主開口
    2LDK+WIC/南向き
  • 建築年
    1973年
  • リノベ竣工年
    2025年
  • 販売状況
    販売中

(メンバー)

MEMBER

  • 企画&推進

    濱中 亮輔

  • 建築ディレクション

    金子 歩実

  • 建築ディレクション

    福田大輔

  • 販売担当・販売促進

    南 湧太

  • リビタのメッセージ

  • パートナーからのメッセージ

    リビタさん、knofさんとの第2弾として、長年大切にしてきた彫刻的な家具を現代の暮らしに再解釈する「Tradition Project」を形にできたことは大きな喜びです。この物件には、世代を超えて受け継がれてきた技術や思いを未来へつなぎ、固定観念にとらわれず、自分らしく自由に選び、楽しく暮らしていただきたいという願いが込められています。1973年竣工の代々木の杜ハイツに積み重ねられた時間に寄り添い、ここでの毎日がより豊かなものになれば嬉しく思います。

    株式会社マルニ木工

    マルニ木工さん×リビタさんの第2弾!またお手伝いできたことを嬉しく思います。
    不動産-建築-家具を繋ぎ、そして誰かの素敵な生活に繋ぐこと。Tradition projectとヴィンテージマンションという最高のマッチングのもと、'60-70sの熱量を感じられる自由な場所をつくりたいと思いました。この静かで賑やかな空間が、型にはまらない、自分らしい愛ある暮らしの舞台になれば嬉しいです。

    knof