西戸山タワーホウムズセントラルタワー
高層階から、未来の暮らしを自由に描く
JR山手線・総武線「新大久保」駅徒歩6分。新宿や高田馬場へのアクセスも良好で、都市生活の利便性を存分に享受できる立地です。
25階建の3棟構成からなる大規模タワーマンションの一角、高層階角住戸ならではの開放的な眺望と光に包まれ、これからの暮らしを自由に描ける住まいです。
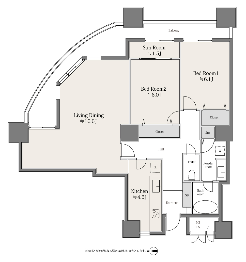
( 間取り )
| 専有面積 | 79.77㎡ |
|---|---|
| 間取り | 2LDK |
( 周辺情報 )
( 月々の支払い目安 )
こちらの物件をご購入の際には仲介手数料が必要になります。
317,059円/月
( 写真 )
( ポイント )
高層階から、未来の暮らしを自由に描く
JR山手線・総武線「新大久保」駅徒歩6分。新宿や高田馬場へのアクセスも良好で、都市生活の利便性を存分に享受できる立地です。
25階建の3棟構成からなる大規模タワーマンションの一角、高層階角住戸ならではの開放的な眺望と光に包まれ、これからの暮らしを自由に描ける住まいです。
都心の利便性と落ち着きの両立
周辺には戸山公園や西戸山公園など緑地が点在し、閑静な住宅街で落ち着いた環境。複数駅・路線が利用可能で、都心アクセスも快適です。スーパーや生活施設も徒歩圏内に整い、日々の生活も安心です。

分譲当時から価値のあるベース


1988年竣工、民間デベロッパー66社が結集して実現した大規模プロジェクト。設計・監理には三菱地所や東急設計コンサルタントなどが参加し、施工は大林組・竹中工務店をはじめとする大手企業が担当。
文化施設や円形広場を備えた建物で、都市的価値の高い住まいです。室内は分譲当時の趣を丁寧に残し、高層階・角住戸ならではの眺望や採光が整ったベースの価値は十分。リノベーションにより、自分らしい暮らしに再編集できる余白も豊富にあります。
眺望と暮らしの想像力




リビングダイニングや窓際に座ると、眼下には西戸山公園の緑、遠くにはスカイツリーの姿を望みます。夏の夜には、隅田川花火大会の美しい花火をリビングから眺めながら家族や友人と過ごすひとときも楽しめます。
リノベーションにより、壁や家具の配置を自由に変え、朝は光あふれるリビングでコーヒーを片手に読書、夕方は窓辺で景色を楽しみながらのディナーと、眺望と暮らしを最大限に活かす住空間に仕上げられます。
例えば洋室は可動式の間仕切りを採り入れ、寝室やウォークスルークローゼットを作るなど、用途に応じてフレキシブルに空間を切り替えることも可能です。シンプルな現状だからこそ、自分らしい暮らしのアイデアを空間に反映できる余白があります。
( 物件概要 )
概要
| 建物名称 | 西戸山タワーホウムズセントラルタワー |
|---|---|
| 所在地(住居表示) | 東京都新宿区百人町3丁目1-4 |
| 交通 |
JR山手線「新大久保」徒歩8分 JR山手線「高田馬場」徒歩10分 JR中央線「大久保」徒歩11分 |
| 価格 | 9,870万円 |
| 権利形態 | 所有権 |
| 敷地面積 | 18,435.46㎡(実測) |
| 共有持分 | 1,000,000分の1576 |
| 用途地域 | 第一種中高層住居専用地域 |
| 専有面積 | 79.77㎡ |
| バルコニー | 13.22㎡ |
| 専用庭 | -- |
| 間取り/主開口 | 2LDK/東 |
| 建物構造 | 鉄筋コンクリート造25階地下2階建 |
| 所在階 | 19階 |
| 総戸数 | 576戸 |
| 建築年 | 1988年(昭和63年)1月 |
| 新築時施工会社 | 大林組、竹中工務店、他JV |
| 管理会社 | 株式会社東急コミュニティー |
| 管理形態/勤務形態 | 全部委託勤務/日勤 |
| 管理費 | 16,765円/月 |
| 修繕積立金 | 22,166円/月 |
| その他費用 | 給湯使用料:7799円/月(使用量に応じて請求。使用量0の場合も基本料金2,022円/月が発生)、トランクルーム:818円/月 |
| 駐車場 | 28,000円~34,000円/月 |
| 駐輪場 | 有 |
| バイク置場 | 有 |
| 取引態様 | 媒介 |
| 現況 | 空室 |
| 引渡 | 相談 |
| その他設備・サービス | ゲストルーム |
| セキュリティ | オートロック、24時間有人管理 |
| ペット飼育 | 不可 |
| リノベーション竣工年 | -- |
| 備考 |
※管理費内訳:ガーデン管理費 5,863円、ホウムズ管理費 1,011円、住宅部会管理費 9,891円、トランクルーム管理費 126円・18円・217円 ※修繕積立金内訳:ガーデン修繕積立金 3,284円、ホウムズ修繕積立金 6,776円、住宅部会修繕積立金 12,106円、トランクルーム修繕積立金 266円・71円・120円 ※2025年10月頃改定予定あり ※駐車場等の空き状況、詳細はお問い合わせください |